Este site utiliza cookies para permitir a mudança de língua e o armazenamento dos seus imóveis favoritos. Ao utilizar este site, concorda que o mesmo utilize cookies.

  • 351 224023965

    (Chamada para a rede fixa nacional)

  • +351 917817934

    (Chamada para a rede móvel nacional)

Apartamento T2

850.000€



Referência

1254723

Natureza

Venda

Tipo de Imóvel

Apartamento

Tipologia

T2

Estado

Em Construção

Certificado energético

A

Ano

2026


Distrito

Porto

Concelho

Porto

Freguesia

Aldoar, Foz do Douro e Nevogilde

Código Postal

4150


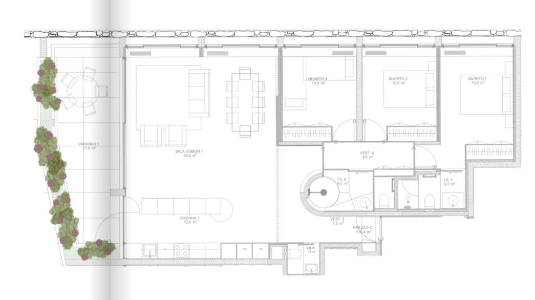
Área Útil

102.4 m2

Área Bruta

111.6 m2

Área de Terreno

9.2 m2

Partilhar



Contactar Imobiliária

*Preenchimento obrigatório
Ao clicar em 'Enviar', declara que aceita a nossa Política de Privacidade.
O apartamento fica junto ao maior parque urbano do Porto e um dos mais extensos da Península Ibérica. O projecto desenvolve-se em três andares com seis apartamentos nas tipologias T2 e T3, numa das localizações mais procuradas e valorizadas da zona da Boavista.
A proximidade imediata ao Parque da Cidade, combinada com o acesso a uma rede consolidada de comércio, serviços e transportes, posiciona este empreendimento como uma escolha de referência — tanto para habitação própria como para investimento com retorno de arrendamento sustentado.
Geral
ClimatizaçãoAquecimento central:Sim
VistasCidade:Sim
VistasJardins:Sim
Exposição SolarPoente:Sim
Luz NaturalMuito Iluminado:Sim
Ar CondicionadoCompleto:Sim
GaragemLugar Interior:Sim
GeraisNº de Casas de Banho:3
GeraisNº de Arrecadações:1
GeraisArmário de roupa / closet:Sim
CozinhaMóveis lacado:Sim
CozinhaPlaca:Sim
CozinhaForno:Sim
CozinhaExaustor:Sim
CozinhaMicro-ondas:Sim
CozinhaFrigorífico:Sim
CozinhaEsquentador:Sim
CozinhaMáquina de lavar loiça:Sim
CozinhaMáquina de lavar roupa:Sim
PavimentoMadeira:Sim
Edificio
GeraisNº de Frentes :2
GeraisNº de Lugares de Estacionamento:1
ElevadorNº de Elevadores:1
Tipo de EmpreendimentoCondomínio fechado:Sim
IsolamentoAcústico:Sim
IsolamentoTérmico:Sim
Domótica
GeraisEstores elétricos:Sim
Painel SolarCompleto:Sim

Este imóvel não tem áreas definidas.

Imóveis
Semelhantes

Apartamento
Venda

700.000€

Apartamento T2+1

700.000€

Porto / Porto / Cedofeita, Ildefonso, Sé, Miragaia, Nicolau, Vitória


Ref: 125

Ref: 125

102 m2

2

3

Sim

Apartamento
Venda

2.250.000€

Apartamento T4 DUPLEX

2.250.000€

Porto / Porto / Lordelo do Ouro e Massarelos


Ref: 01205

Ref: 01205

230 m2

4

5

Apartamento
Venda

399.990€

Apartamento T4 para modernizar construção Fer...

399.990€

Porto / Porto / Ramalde


Ref: RR16

Ref: RR16

139 m2

4

2